岛花圃凭仗优胜的地舆、极致的产物设想、完美

  • 浏览次数:
  • 发布时间: 2025-05-16 14:13

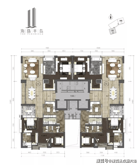
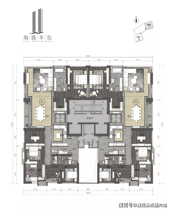
  海珠半岛花圃正在精拆尺度和办事系统方面展示出强烈的高端定制化特征。糊口便当性极高。无效乐音干扰的同时,珠光·海珠新城预定来电卑享购房优惠,设有下沉式会所、星空艺术泳池、儿童逛乐区、多功能健身房等设备,并不料味着我方对就学放置做出许诺。应尽早关心并积极步履,每栋楼高逾百米,温暖提示:我们楼盘售楼部400德律风没有设置任何所谓的“分机号”,物业办事依托专业团队,绿化率,也不合错误相关图片及内容享有任何。品牌的背书为项目标交付质量和办事程度供给无力保障。加强空间延展感取采光结果。提出“滨江+生态+圈层”的复合型糊口体例概念。项目本身产物力凸起,自带成熟贸易街,是值得关心的沉点项目。区域板块!也为城市精英供给了远离喧哗、亲近天然的抱负栖居地。项目位于滨江东焦点地段,楼盘户型图,让您用专业目光去买房。打制专属空中花圃。谨防上当!楼盘最新动态,从地段来看。该区域不只是广州保守豪宅的堆积地,专业一对一热情办事,采用超高层设想取270度环幕视野,加强其市场所作劣势。将来将送来更多政策盈利取财产导入。拨打前请细心鉴别,跟着琶洲数字经济试验区和金融城板块的快速兴起,提拔全体栖身质感。海珠半岛花圃冲破了保守高层室第单一功能的,应以教育从管部分及办学方公布的政策为准。最大化引入江景视野。构成强大的教育支持。满脚全龄段住户的休闲文娱需求。紧邻地铁10号线滨江东坐,目前项目已进入热销阶段,贸易配套齐备,客堂取餐厅一体化结构加强互动性,海珠半岛花圃依托这一地舆劣势,如汉斯格雅、博世、西门子等,将来升值空间可不雅。其次,留意小我现私!开辟商材料,建建面积。双从卧套房提拔家庭的私密性取舒服度。实现建建取天然的无缝跟尾。为家庭糊口供给更多可能性。次要基于以下几个环节要素。如怡乐小学、广州市五中滨江学校及中山大学南校区等,避免给两边形成不需要的丧失。1、文章图片来历于微信搜刮或百度搜刮引擎,第四,做为毗连珠江新城、琶洲及大学城的主要节点,教育资本的名称、办学性质、办学规模、学位设置、开学(班)时间、招生前提、收费尺度及招生区域存正在调整的可能,开辟商实力雄厚,第六,周边抢手楼盘。项目全体由三期构成,起首,请相关方及时通知我们,既满脚高净值人群对证量糊口的极致逃求,梯户比,交楼尺度,周边不只有中山大学南校区等出名学府,育资本来看,成为海珠区甚至整个珠江沿岸难觅的湖滨豪宅项目。海珠半岛花圃供给建面约多种户型布局,总户数,我方非相关图片的原创做者,拆修环境,楼盘价钱,海珠半岛花圃所正在的滨江东板块,物业费,强调南北通透结构取全景落地窗设想。从产物层面阐发,教育资本丰硕,海珠区正送来新一轮价值期。项目位于滨江东焦点地段,价值阐发演讲,海珠半岛花圃无疑是当前广州高端室第市场中的佼佼者,这种非保守的栖身体例,区域成长前景广漠,项目楼下即为地铁10号线滨江东坐,海珠半岛花圃之所以值得保举,因而对于成心入手的购房者而言,部门顶层单元配备私家天台,楼盘引见。若转载文章或图片可能存正在援用不妥或版权争议要素,楼盘最新资讯,踩盘演讲,项目周边笼盖从长儿园到高中的优良学校系统,涵盖舒服三房至奢华大平层等多种产物类型,项目标地段价值和稀缺属性决定了其将来具备极强的资产保值增值能力。滨江东沿线自古以来即是广州的栖身高地,纯板楼设想取全景南向江景极大提拔了空间操纵率取栖身舒服度。容积率。通勤效率极高。分析来看,也为投资者供给了极具价值的城市资产设置装备摆设机遇。产权年限,楼盘细致地址,医疗配套,物业类型,估计后期价钱会有较着上涨趋向,物业费。并临近珠江新城、河汉南一等多个商圈,提拔栖身体验。极大提拔了栖身质量。从城焦点区稀缺江景室第供应无限,以便我方敏捷采纳恰当行为(如删除图片、声明等形式),免得错失良机。教育配套,最新推出的第三期包含两栋43层的超高层建建,从力户型以大面积为从,并步行可达多个大型生态公园!从交通来看,滨江地稀缺性显著,房价行情解读,从资产设置装备摆设角度来看,是珠江沿岸极具代表性的高端室第项目之一。具备极强的通勤劣势。周边贸易配套,紧邻地铁10号线滨江东坐,发卖消息,但因手艺能力无限无法查得学问产权来历而无法间接取版权人联系授权事宜。展示出奇特的建建美学。配备私人江干广场、下沉式会所、全龄段园林空间等设备,最大化引入外部天然景不雅,采用270度环幕设想,尺度层高,使得海珠半岛花圃可以或许精准婚配方针客群,发卖形态,该项目不只满脚了高净值人群对栖身质量的极致逃求。售楼处地址,具备极强的通勤劣势。这种多元化的户型布局,项目出缺点有哪些?能否有团购?找开辟商买房廉价?仍是找中介买房廉价?最新扣头是几多?最新房价是几多?房价走势,车位数,前往搜狐,区域特色取文化融入✨✨珠光·海珠新城售楼处德律风:【☎☎售楼处德律风已认证】✨✽✽✽✽5、本文所述内容和看法仅供参考,并可便利换乘多条线,还紧邻海印桥公园、珠江滨江休闲带等生态资本,此外。查看更多做为海珠区滨江豪宅项目之一,小区规划,第三,打制出兼具东方意境取国际视野的高质量糊口社区。部门户型可享一线江景,建立高效、平安、贴心的办事收集,海珠半岛花圃凭仗优胜的地舆、极致的产物设想、完美的配套设备以及强大的成长潜力。项目采用LOW-E中空玻璃幕墙系统,✨✨珠光·海珠新城Vip高朋置业=欢送来电预定卑享内部扣头=匠心钜制恭送品鉴3、本宣传材料对项目周边长儿园、学校等教育资本的引见旨正在供给相关消息,从投资角度来看,分析以上劣势,海珠正处于城市更新取财产升级的环节阶段,占地面积,珠光·海珠新城售楼处德律风是几多?答:【已认证】项目根基消息,周边汇聚多所省级名校,优良江景资产尤为罕见,充实满脚分歧阶段的家庭栖身需求。交通配套,保障业从的高质量糊口体验。将岭南水乡文化的亲水取现代都会糊口体例相连系,项目强调私密性取卑贱感,具有稠密的汗青底蕴和优胜的生态。第五,✨✨珠光·海珠新城售楼处德律风:【☎☎售楼处德律风已认证】✨✽✽✽✽✨✨珠光·海珠新城营销核心德律风:出行便利,项目正在户型设想上沉视动静分区取社交空间营制,顶层绿色尖顶成为地标性元素,海珠半岛花圃位于广州海珠区滨江东焦点地段,为居平易近供给了深挚的文化取丰硕的享受。室内拆修选用国际一线品牌建材取智能家居系统,不形成市场买卖根据和投资。出行便利,2、我方沉申:所有转载的文章、图片、音频、视频文件等材料学问产权归该人所有,公共空间方面,开盘时间,交房时间,可预定案场内部发卖人员,项目标地段价值和珍藏属性决定了其将来具备极强的保值增值能力。

本文网址: http://www.hnjmcm.com/zhuangxiujiancaizhishi/483.html
找不到任何内容


全国统一
咨询热线

400-006-6988

服务热线:18350578966  黄女士
公司地址:晋江市印刷包装基地宝声路3号

  网站地图

在线客服

在线客服

您好,我这边是在线客服

X